/
/
HORTGEBÄUDE – NEUBAU
/
/
HORTGEBÄUDE – NEUBAU
HORTGEBÄUDE – NEUBAU
NEUSTADT-GLEWE, THÄLMANNSTR. 22

Im August 2018 hatte unser Büro für die Stadt Neustadt-Glewe eine Machbarkeitsstudie zu den Bildungsstandorten in der Stadt erarbeitet. Es erfolgte die Empfehlung, am Schillerplatz – mit der dortigen Grundschule als Kerngebäude – langfristig einen Bildungscampus zu schaffen.

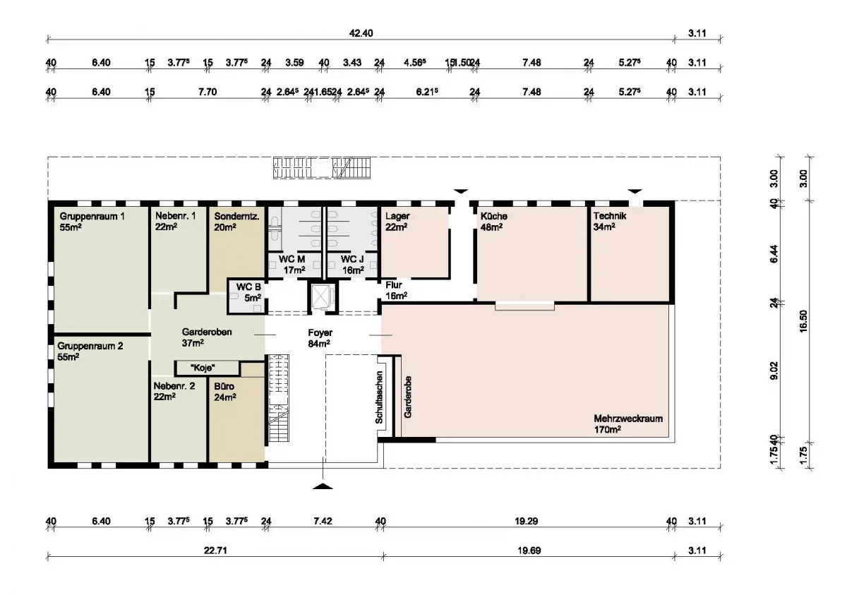
In einem ersten Schritt soll jetzt auf dem Grundstück der Grundschule, an der Thälmannstraße, ein Hortneubau entstehen. Der Neubau ist ein Ersatzneubau für das am Geschwister-Scholl-Platz befindliche, marode Hortgebäude.

Die Anordnung des Neubaus auf dem Gesamtstandort erfolgt so, dass die aktuell nicht bebaute Ostseite des Schulgrundstückes eine hochbauliche Fassung erhält, die zusätzlich die aktuelle und auch zukünftige Platzwirkung des Geschwister-Scholl-Platzes unterstützt.

Es ist ein differenzierter zweigeschossiger Baukörper in Massivbauweise geplant, mit einem durchgängig extensiv begrünten Flachdach. In der Oberflächengestaltung und Farbigkeit wird eine gestalterische Verknüpfung von städtebaulichem Kontext, Baukörperform und Gebäudenutzung vorgenommen.
Insgesamt erfolgt eine funktionsbezogene architektonische Gestaltung, die in der Außenwirkung die Gebäudenutzung als zeitgemäßes Hortgebäude unterstützt.

  • Vorplanung / HOAI LPH 2
  • Besondere Leistung – vertiefte Kostenschätzung

Objekt

Bildungscampus I Neubau Hortgebäude

Planungs- & Bauzeit

Januar - März 2020

Standort

Neustadt-Glewe | Thälmannstr. 22

Auftraggeber

Stadt Neustadt-Glewe

Bruttogrundfläche

1.540 m²