/
/
MAGAZIN-GEBÄUDE – STUDIE STADTARCHIV
/
/
MAGAZIN-GEBÄUDE – STUDIE STADTARCHIV
MAGAZIN-GEBÄUDE – STUDIE STADTARCHIV
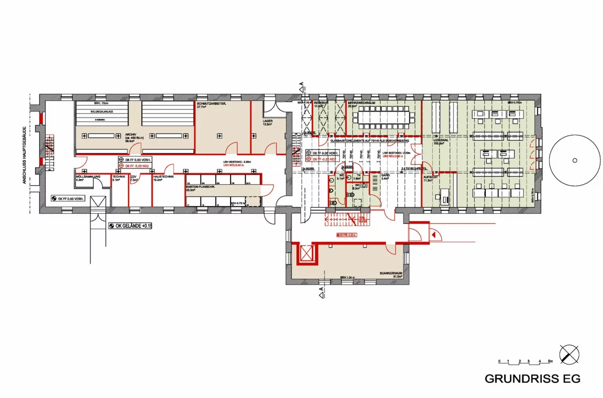
SCHWERIN, LÜBECKER STR. 142/ HOFGEBÄUDE

Die Deutsche Rentenversicherung Nord versucht seit ca. 10 Jahren das historische Magazingebäude (1. Bauabschnitt 1897/ 2. Bauabschnitt 1928) einer Vermarktung zuzuführen. Eigenbedarf an den Räumlichkeiten besteht nicht.
In der Vergangenheit wurden mehrere Veräußerungsversuche an private Investoren vorgenommen, die jedoch letztendlich aus unterschiedlichen Gründen – bedingt in der Bausubstanz – gescheitert sind.

Mit der Machbarkeitsstudie soll eine potentielle Eignung für die Nutzung durch das Stadtarchiv Schwerin überprüft werden.

Ziel der Machbarkeitsstudie ist zum Einen das Bewerten der historischen Bausubstanz des Magazingebäudes auf statisch-konstruktive Belange.
Zum Anderen ging es darum zu überprüfen, ob die Funktionen/ Räumlichkeiten des Stadtarchivs Schwerin in das denkmalgeschützte Gebäude sinnvoll  einzuordnen sind.

In diesem Zusammenhang sollte mit überprüft werden, ob es mit der beabsichtigten Nutzung ggf. bauliche und nutzungsseitigen Einschränkungen gibt.

STAND/ ZWISCHENERGEBNIS:

Als aktueller Zwischenstand der Machbarkeitsstudie (08.03.2019) hat sich herausgestellt, dass die baulichen und funktionellen Voraussetzung für eine Nutzung des historischen Magazingebäudes als Stadtarchiv offensichtlich gegeben sind.

Durch die Lage des Magazingebäudes an der Schillerstraße, mit einer dortigen Zufahrt, lässt sowohl funktionell als auch architektonisch eine der besonderen Nutzung angemessene Adressbildung realisieren.

Durch den aktuellen Stand der  Machbarkeitsstudie wird nachvollziehbar aufgezeigt, dass die Eignung des historischen Magazingebäudes für eine Umnutzung zum Stadtarchiv gegeben ist.

ZUR PRÄSENTATION: DRV-Magazin – Studie Umnutzung

Machbarkeitskeitsstudie (Teilleistungen HOAI; LPH 1+2)

Objekt

Magazingebäude | Umnutzung Stadtarchiv

Planungs- & Bauzeit

März 2019

Standort

Schwerin | Lübecker Straße 142

Auftraggeber

Deutsche Rentenversicherung Nord

Bruttogrundfläche

ca. 2.250 m²