/
/
KITA „Feldstadtmäuse“ – ERSATZNEUBAU
/
/
KITA „Feldstadtmäuse“ – ERSATZNEUBAU
KITA „Feldstadtmäuse“ – ERSATZNEUBAU
SCHWERIN, BLEICHERSTR. 24

Die Stadt Schwerin, vertreten durch das Zentrale Gebäudemanagement (ZGM), errichtet auf einem unbebauten Grundstück im Innenhofbereich der Demmlerstraße einen Ersatzneubau für die Kindertagesstätte „Feldstadtmäuse“. Die Kita gGmbH wird die Einrichtung betreiben.

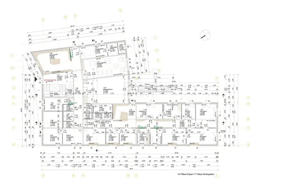
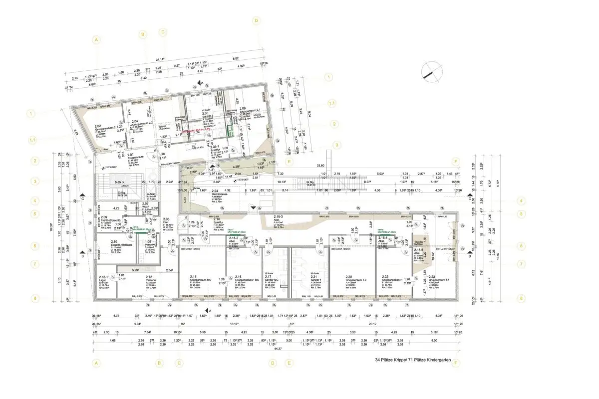
Die geplante Kindertagesstätte ist für die Betreuung von 105 Kindern ausgelegt. Die Zusammenstellung der einzelnen Bereiche stellt sich dabei wie folgt dar:
–  34 Krippenkinder
–  71 Kindergartenkinder, davon 2 integrative Gruppen mit
jeweils 4 Kindern mit Einschränkungen.

Zur Klärung der Machbarkeit eines standortnahen Ersatzneubaus wurde BRENNCKE ARCHITEKTEN mit einer Markeitsstudie beauftragt. Im Ergebnis der Studie wurde der beabsichtigte Standort städtebaulich und funktionell als geeignet bewertet.
Im Ergebnis eines europaweiten VgV-Verfahrens wurde im Dezember 2020 die Beauftragung der Gebäudeplanung und der Brandschutzplanung an BRENNCKE ARCHITEKTEN realisiert.
Nach interner kommunaler Klärung erfolgte im Oktober 2023 die Weiterführung der Planung, nachfolgend mit Ausschreibungs- und Vergabeverfahren.
Die Tiefbauarbeiten begannen im Februar 2025. Im Juli 2025 wurden die Erdgeschoss-Massivbauarbeiten beendet, die Holztafel-Montagearbeiten im Obergeschoss Mitte August 2025.
Zur Zeit erfolgen die Arbeiten die finalen arbeiten zur Fassadenbekleidung, dem Innenausbau, der Haustechnikinstallation und den Freianlagen.
Die Fertigstellung des Bauvorhabens ist bis Ende Juni 2026 beabsichtigt.

  • Machbarkeitsstudie (Gebäudeplanung; HOAI, Leistungsphase 2)
  • Gebäudeplanung nach HOAI; LPH 3-9, stufenweise Beauftragung
  • Brandschutzplanung

Objekt

Kita "Feldstadtmäuse" | Ersatzneubau

Planungs- & Bauzeit

2017/ 2024 - 2026

Standort

Schwerin | Bleicherstraße 24

Auftraggeber

Landeshauptstadt Schwerin | ZGM

Bruttogrundfläche

ca. 1.800 m²