/
/
EIGENTUMSWOHNUNGEN – UMNUTZUNG „LUNGENKLINIK“
/
/
EIGENTUMSWOHNUNGEN – UMNUTZUNG „LUNGENKLINIK“
EIGENTUMSWOHNUNGEN – UMNUTZUNG „LUNGENKLINIK“
SCHWERIN, LANKOWER STR. 11-15

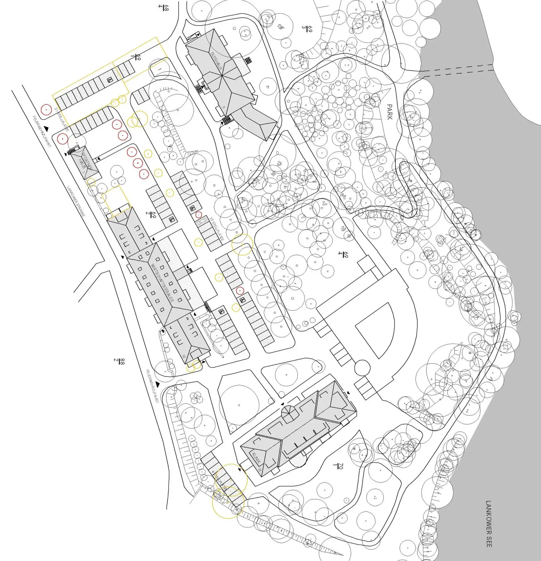
Auf dem ehemals als Park gestalteten Grundstück befindet sich, direkt auf der Landzunge am Lankower See, die ehemalige Lungenklinik.
Auf dem Grundstück entstanden mehrere Gebäude, von denen heute das ehemalige Gutshaus und das ehemalige Klinikgebäude unter Denkmalschutz stehen. Der Park der Lungenklinik steht ebenfalls unter Denkmalschutz.

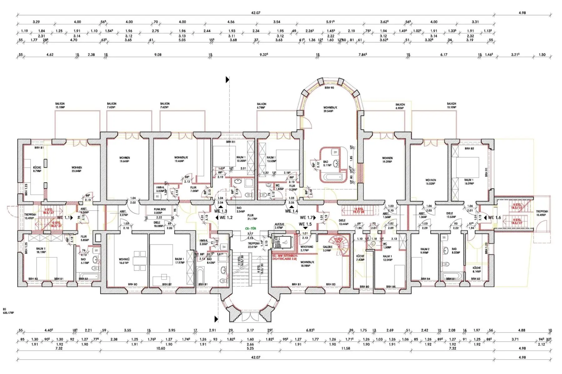
In der Entwurfs- und Genehmigungsplanung wurden die Gebäude zu Wohngebäuden umgenutzt.

  • Entwurfs- und Genehmigungsplanung nach HOAI; Leistungsphasen 2-4
  • Durchführung der Bestandserfassung für Klinikgebäude Wirtschaftsgebäude und Gutshaus
  • Erarbeitung denkmalpflegerischer Zielstellungen
  • Erarbeitung der Brandschutzplanungen
  • Lageplanerarbeitung mit Einordnung erforderlicher PKW Stellplätze unter Berücksichtigung denkmalpflegerischer Belange (denkmalgeschützte Parkanlage)

Objekt

Lungenklinik | Umbau und Sanierung

Planungs- & Bauzeit

2008

Standort

Schwerin | Lankower Straße 11-15

Auftraggeber

Neukowis Projektentwicklung

Bruttogrundfläche

ca. 3.200 m²